площадью 244,86 м2, по цене 86949786 по адресу 3-я Хорошёвская - 18/2

Цена 86 949 786 р.
Район Хорошево-Мневники
Адрес 3-я Хорошёвская, 18/2
Площадь помещения 244,86 м2
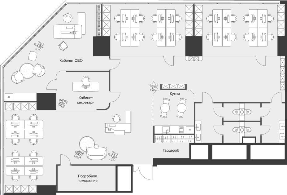
Рассрочка 0% на 12 месяцев. Бизнес-центр А класса AVIUM находится рядом со станцией МЦК Зорге в зоне влияния Ленинградского делового коридора, одной из самых востребованных локаций столицы в сегменте коммерческой недвижимости с отличной транспортной доступностью. Менее одной минуты займет путь пешком до станции МЦК Зорге, а быстрый выезд на Ленинградский проспект в обе стороны и Звенигородское шоссе обеспечивает комфорт для автомобилистов. Предложение для корпуса 2. Уникальное местоположение сочетает сохранившуюся в районе атмосферу респектабельного спокойствия и динамику нового строительства с учетом перспективы развития «Большого Сити», в который входит и деловой комплекс AVIUM. РАЗВИТЫЙ РИТЕЙЛ 7 000 м коммерческих площадей Офисные башни объединяет двухэтажное многофункциональное пространство галерейного типа, где разместятся магазины и сервисная инфраструктура для резидентов делового центра и жителей района. ЛАНДШАФТНЫЙ ПАРК Более 1,2 га займут пешеходный бульвар и ландшафтный парк от бюро SCAPE. Новое общественное пространство активирует дополнительные пешеходные маршруты, положительно влияя на качество городской среды. ОСНОВНЫЕ ХАРАКТЕРИСТИКИ ПОМЕЩЕНИЙ И БЦ AVIUM 1) Особенности архитектуры - выразительность объемного решения башен достигается отсутствием угловых несущих колонн 2) Ввод в эксплуатацию 2028 год 3) Гибкие условия покупки - рассрочка, ипотека 4) Реализация по ДДУ с эскроу-счетами 5) Высота потолков - 3,6 м 6) Шаг колон - 7 х 7 м 7) Мокрая точка в каждом помещении 8) 14 высокоскоростных лифта и 1 сервисный в каждой башне 9) Энергоэффективное остекление - стекла максимально пропускают солнечный свет, при этом защищают помещения от перегрева летом и снижают теплопотери зимой 10) Современная инженерия - приточно-вытяжная вентиляция 60 м/ч, центральная система, центральная система отопления 11) Система воздухоподготовки включает в себя фильтрацию уличного воздуха, увлажнение, подогрев/охлаждение и подачу в офисные пространства 12) Отсутствие колонн в углах здания позволяет создать кабинеты с панорамными видами, подходящие для руководителей 13) Подземный паркинг на два этажа 14) Ландшафтный парк с зонами активностей: главная площадь для мероприятий, уличные офисы, места для отдыха, спортивные площадки 15) Современная инфраструктура внутри бизнес-центра - 7 000 м торговой галереи 16) Концепция «Сухие ноги» - нужные сервисы под одной крышей, без необходимости выхода на улицу
Объявление № 23173562
Дата подачи:
22 августа 2025 г. 12:58
Дата обновления:
22 августа 2025 г. 4:00
Просмотров 7 Хотите продать быстрее?

Продавец
Отдел продаж
Показать номер телефона
Пожаловаться
Комментарии:
Добавить